ARCHITICO
RH2F1 - Modern One-Bedroom, Two-Bath Home with Pool - Pre Order!
Design Style
Contemporary tropical villa with floor-to-ceiling windows, open-concept living, and a seamless indoor–outdoor connection.
Construction Type
Two-level modern residence with reinforced concrete structure and modular layout flexibility.
Project Type
Designed for Airbnb rentals, boutique hospitality, or private residential living with luxury comfort.
Exterior Features
Clean modern façade with full-height glazing
Balcony with metal railing overlooking pool and garden
Private plunge pool with integrated Jacuzzi feature
Spacious outdoor lounge with shaded seating area
Tropical landscaping with palms and flowering plants
Expansive paved deck with sunbathing area
Interior Design
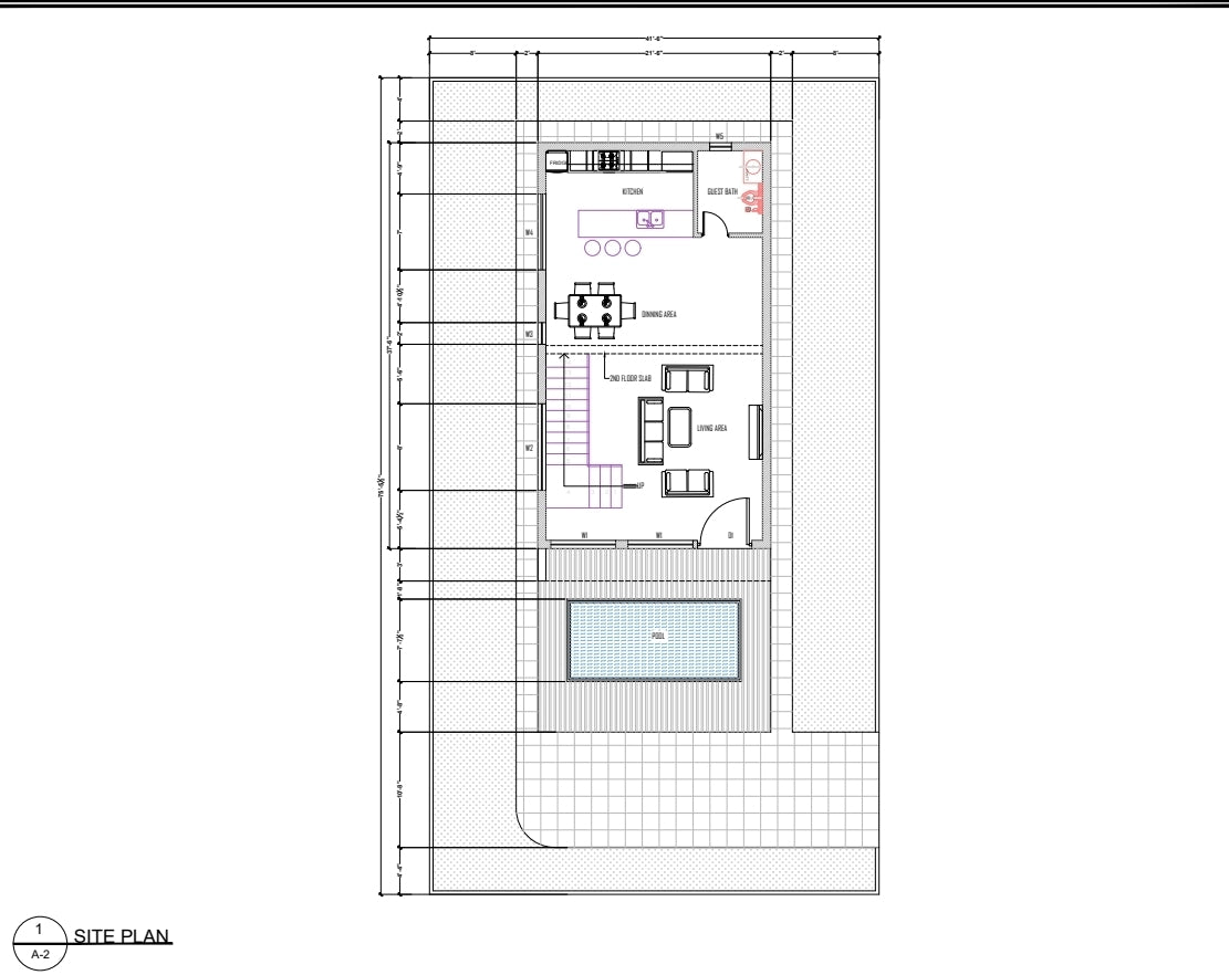
Ground Floor: Open living room with double-height ceiling, full entertainment wall, and direct pool access. Modern kitchen with island, bar seating, and dining area for six. Guest bathroom with contemporary fixtures. Large glass panels to maximize natural light. Warm, natural material palette of wood, stone, rattan, and neutral fabrics.
Second Floor: Master bedroom with private lounge area. Full ensuite bathroom with modern vanity and glass shower. Floor-to-ceiling windows overlooking pool and garden. Built-in wardrobe and functional storage solutions.
Floor Plan Details
Total area: ~130 m² (two levels combined)
Layout includes: 1 master bedroom with lounge,
2 full bathrooms (guest + ensuite),
open living + dining + kitchen area,
balcony with seating space,
private pool and an outdoor relaxation deck.
Información del Producto
- Purchase the plan from our website
- You will receive a pdf file with plan download link
- Download the file from the link
Our architectural plan sets are designed to help you move confidently from concept to construction. Each plan includes detailed documentation and professional visuals that support building, permitting, and design planning.
2D Documentation
- Floor Plans
Ground floor layout
Upper floor layout (if applicable)
Roof plan
Pool area details (if applicable)
Carport specifications - Elevations
Front elevation
Rear elevation
Side elevations (both left and right) - Furniture Layout Suggestions
Proposed layouts for optimal space usage and interior flow - Room-by-Room Design Notes
General recommendations for finishes, lighting, and spatial organization - Printable & Editable Files
Delivered as PDFs and/or CAD files for easy review, permit submission, or contractor use
3D Visualization
- High-resolution 3D Renderings
Detailed exterior and interior images to help you visualize materials, proportions, and atmosphere.
Optional Add-Ons (Available per Variant Selected)
These features are included depending on the plan package you choose:
- Material List
A breakdown of suggested materials for construction and finishing—ideal for budgeting and local sourcing.
Animated Walkthrough
A cinematic virtual tour showing the spatial flow of the home, including key features and transitions between zones.
Upon purchase, you will receive:
- Initial Delivery
- Complete set of 3D views showcasing both interior and exterior house designs
- 2D drawings
- Detailed floor plans
- Elevation drawings
All delivery timeframes are calculated from the date of purchase.
For modified and ads on
The timeline depends on the complexity of your request:
Minor changes (e.g., adding a pool, resizing rooms): 5-7 business days
We’ll confirm the delivery time after reviewing your request.
- Instant Delivery:
All 2D plans and 3D renderings are delivered digitally upon purchase. - 4 Business Days (Max):
Add-ons such as the Material List and Animated Walkthrough require custom preparation and will be delivered within 4 business days via email.
Add-Ons to Enhance Your Plan
Choose one or more of the following services to take your project to the next level:
Animation
We’ll create a high-quality 3D animation of your design, showing how your future space will look and feel — perfect for investors, clients, or just getting excited about the build.
✅ Visual walk-through
✅ Daylight, shadows & material rendering
✅ Ideal for presentations & marketing
Material List
Plan your budget with clarity.
Get a detailed list of all materials required for your project — Great for calculating costs and avoiding surprises.
✅ Accurate take-off per design
✅ Supports budgeting and procurement
✅ Easy to share with contractors or suppliers
Modification Process
Love one of our ready-to-use plans but need a few changes?
Whether it’s adding a pool, enlarging a room, or adjusting the layout — we’ve got you covered. Simply click the “Let’s Modify” button on the product page and tell us what you'd like to change.
✅ We’ll review your request
✅ Send back visual suggestions using AI (free of charge)
✅ Once approved, we’ll update your plan to match your needs

Without a pool

With A pool
F.A.Q.
Find everything you need to know about our ready-to-use architectural designs right here.
What are "Ready-to-Use" Architectural Plans?
Our Ready Plans Library features complete architectural designs with both 2D drawings and 3D visualizations that are immediately available for your project. These pre-designed plans eliminate the wait for custom architectural work, allowing you to start your construction project sooner.
What's Included in Ready-to-Use Architectural Plans?
Our ready-to-use architectural plans include everything you need to visualize and plan your build with confidence:
– Includes layout with room dimensions, doors, windows, and basic measurements.
– 3D renderings that show the design style, materials, and spatial flow.
– Shows the structure’s exterior look from the front.
– All files are delivered digitally for instant download and easy sharing with your contractor.
– You can request engineering blueprints, material lists, or plan modifications at an additional cost.
Please note: These plans are for design and planning purposes only and are not construction-ready unless otherwise stated.
Why are 2D and 3D Visualizations Not Engineering Plans?
2D floor plans and 3D visualizations are design tools that help you understand the layout, aesthetics, and functionality of a space. While they provide visual clarity and help communicate your vision, they are not technical documents for construction.
Engineering plans, on the other hand, include detailed structural specifications, electrical layouts, plumbing systems, foundation requirements, and are typically required for building permits and contractor execution.
At Architico, we offer an add-on service where you can request:
Can I Customize These Plans?
Yes, you can! All of our ready-to-use plans can be customized to better fit your vision, location, or functional needs.
Whether you want to adjust room sizes, add a pool, change the layout, or include outdoor features — our team can help. Simply click the “Let’s Modify” button on the product page and describe what changes you'd like. We’ll review your request and provide options, pricing, and timeline.
Customization is easy, flexible, and designed to make your project truly yours.
How do I receive the plans after purchase?
Once your purchase is complete, you will receive an instant digital download link via email. The files typically include:
2D floor plan (PDF)
3D visualizations (JPEG or PDF)
Front elevation
You can save, print, or share them with your designer or contractor immediately.
Are these plans suitable for my location?
Our plans are designed with flexibility in mind and can be adapted globally.
However, local building codes and regulations vary, so we always recommend consulting a local engineer or architect to review the design and ensure compliance.
Can I get a refund if I change my mind?
Due to the digital nature of our products, all sales are final and non-refundable.
If you’re unsure about which plan to choose, feel free to contact us first — we’re here to help guide your selection!
What if I need help choosing a plan?
We offer free guidance to help you choose the best plan for your needs.
Just send us a message with details like your preferred size, number of rooms, and budget, and we’ll recommend a design that fits your vision.
Do these plans include construction permits or approvals?
No. Our plans are pre-designed concepts that help you plan your project.
Permit requirements vary by country and municipality, so you’ll need to submit the plans to a local professional to prepare them for official approval.
Do you offer support after purchase?
Absolutely. Once you purchase a plan, our team remains available to assist with:
Questions about the files,
Optional add-ons (like engineering plans)
Custom modifications
Just reach out anytime — we’re here to support your project from design to build.
